Naczepa niskopodwoziowa - możliwość wynajmu Goldhofer 4-Achs-Tele-Semi mit hydr. Doppelklapprampen
Opublikowane: 23d.
Opublikowane: 23d.
Leasing
Dostępne na życzenieZu jedem gebrauchten Auflieger erhalten Sie einen aktuellen & vollständigen Inspektions- und Funktionsbericht.
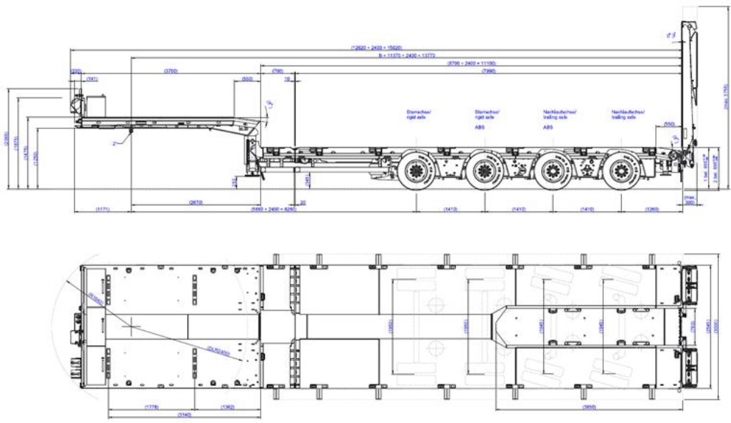
Schwanenhals, starr, in Mittelröhren-Ausführung:
-Geschlossener Außenrahmen mit Ausschnitte für Spanngurte (LC 1.500 daN)
-Bodenbelag Stahl mit Antirutschbelag
-inklusive Lochleiste für Alu-Anlegerampen
-2" – Königszapfen
-Mechanisch betätigte BPW-Sattelstützen
-550 mm lange, 8’ Anschrägung am Schwanenhalsende
-Stirnwand inkl. Parkposition für Rückwand, 400 mm hoch
-Ersatzradhalter stehend an der Vorderseite des Schwanenhalses montiert
-3 Paar Zurrringe LC 5.000 daN versenkt in der Ladefläche des Schwanenhalses
-Aluminium-Steckbordwände 400 mm hoch, bestehend aus 2x Bordwand seitlich Länge 3.150 mm und Rückbordwand mit Rungen (verzinkt)
-Staukasten rechteckig, Aluminium, Klappdeckel, abschließbar Maße ca. 400 x 800 mm, Mitte
-Staukasten 45’, Aluminium, Klappdeckel, abschließbar Maße ca. 400 x 800 mm, links
-Staukasten 45’, Aluminium, Klappdeckel, abschließbar Maße ca. 400 x 800 mm, rechts
Ladefläche, einfach teleskopierbar:
-Geschlossener Außenrahmen mit Ausschnitten für Spanngurte (LC 1.500 daN)
-Festes Teil vorne 700 mm
-Bodenbelag Blech mit Antirutschbelag
-Angeschrägte Schnittstelle zwischen Festteil und Ladefläche zum Einhängen von Überbrückungsschienen und Radmulden
-Baggermulde inkl. Langlöcher zur Ladungssicherung (LC 1.500 daN), Länge ca. 3.850 mm
-Vorbereitung für hydraulische Rampe (Elektroversorgung)
-Holme zur Verbreiterung auf 3.000 mm
-angeschrägtes Fahrzeugheck 8°, 550 mm lang
-Schlittenausführung für einfachen An- und Abbau von Rampen
-Durchgehender Schmutzfänger am Heck
-1 Paar Zurrpunkt LC 10.000 daN mittig auf der Ladefläche hinter dem Schwanenhals
-7 Paar Zurrpunkt LC 10.000 daN im Außenrahmen der Ladefläche
-6 Paar Rungentasche 100 x 50 mm im Außenrahmen der Ladefläche
-1 Paar Zurrpunkt LC 10.000 daN mittig im Heckbereich der Ladefläche
-1 Paar Rungentaschenleisten ca. in der Mitte der Ladefläche
-1 Paar Rungentaschenleisten auf dem Festteil
-1 Paar Rungentaschenleisten hinter der letzten Achse
Rampen:
-Hydraulische Doppelklapprampen, 2.750+1.500x800 mm
-Holzbelag Lärche
-Ansteuerung über Fernbedienung (über Kabel und Funk möglich)
-Rampen mit Schnellwechsel-(Demontagesystem)
Fahrwerk:
-Achsfabrikat BPW ECO Max
-2 Fahrhöhen
-4 Achsen á 10 t (technisch 12 t)
-Zwillingsbereifung 245/70 R17.5
-2 x Starrachse und 2 x reibungsgelenkte Achse
-Rückfahrlenksperre der reibungsgelenkten Achse über Rückwärtsgang
-Bremsanlage Fabrikat Knorr (gemäß EU-Vorschriften mit EBS-E)
-TIM G2 von Knorr (TrailerlnformationModul)
-Fahrstabilitätsregelung RSS (Roll Stability Support)
-lastabhängige Liftachse auf der ersten Achse inkl. Anfahrhilfe (Zwangsabsenkung der Liftachse über TIM möglich)
Zubehör:
-4 Unterlegkeile mit Halter
-2 Paar Warntafeln 423 mm x 423 mm, mit 2 Positionsleuchten und Steckposition für Rundumleuchte, stufenlos verstellbar bis 3.950 mm
-Befestigungsmöglichkeiten am Schwanenhals und auf der Ladefläche (alternativ an der Rampe, falls vorhanden) sind inklusive
-steckbares Schottblech am Ende der Baggermulde
-Elektro-Hydraulik Aggregat zur Rampenbedienung
-Bedienung der Rampen per Funk-Fernbedienung
-Hydraulische Entlastungsstützen am Fahrzeugheck zum Abstützen beim Beladevorgang
-1 Paar zusätzliche Rückfahrscheinwerfer Heck auf Rückwärtsgang geschaltet
-Holz-Verbreiterungsbohlen - Lärche (Option)
✅ Ten niskopodwoziowy naczepa Goldhofer 4-Achs-Tele-Semi mit hydr. Doppelklapprampen to wszechstronny i niezawodny sprzęt zaprojektowany do transportu ciężkich ładunków.
✅ Dzięki hydraulicznym podwójnym składanym rampom, ta naczepa oferuje łatwe załadunek i rozładunek maszyn, co czyni ją efektywną do różnych celów budowlanych i przemysłowych.
✅ Konstrukcja 4-osiowa gwarantuje stabilność i wytrzymałość, nawet przy przewożeniu dużych i gabarytowych przedmiotów, zapewniając spokój podczas operacji transportowych.
🚛 🚜 ⚙️ Zapoznaj się z tą wyjątkową naczepą niskopodwoziową i wieloma innymi na Truck1.eu. To i tysiące innych ofert są dostępne dla Ciebie na Truck1.eu.
Ta oferta ma charakter wyłącznie informacyjny. Proszę potwierdzić szczegóły bezpośrednio u sprzedawcy.
Po zidentyfikowaniu interesującego pojazdu na Truck1.eu, masz możliwość skontaktowania się ze sprzedawcą za pomocą formularza kontaktowego lub dzwoniąc bezpośrednio do dealera pod podanym numerem telefonu. Wybierz metodę, która najlepiej odpowiada Twoim preferencjom.
Skontaktuj się ze sprzedawcą, aby poprosić o dodatkowe informacje dotyczące dostępności pojazdu, stanu technicznego i faktycznej ceny, ponieważ reklamy mogą nie zawsze zawierać pełne szczegóły. Dodatkowo poproś o najnowsze zapisy serwisowe lub raporty z inspekcji, aby uzyskać lepszy obraz aktualnego stanu pojazdu.
Wykorzystaj funkcję porównawczą Truck1 do oceny podobnych pojazdów. Pomoże Ci to ocenić, czy proponowana cena jest konkurencyjna i zgodna z trendami rynkowymi. Poszukaj wzorców w cenach i funkcjach, aby podjąć świadomą decyzję.
Podczas zakupu pojazdu online ważne jest, aby zweryfikować reputację sprzedawcy, szukając pozytywnych opinii i historii udanych transakcji. Ikony "Status sprzedawcy" na Truck1 dostarczają cennych informacji opartych na doświadczeniach z dealerem, pomagając ocenić wiarygodność sprzedawcy.
Jeśli to możliwe, priorytetem powinno być odwiedzenie sprzedawcy i osobiste zbadanie pojazdu. Jeśli to możliwe, zorganizuj inspekcję przedzakupową przez osobę trzecią. Może to ujawnić potencjalne problemy, które mogą nie być widoczne na zdjęciach lub wspomniane w ogłoszeniu.
Zadbaj o podpisanie szczegółowej umowy sprzedaży w celu ochrony swoich praw i potwierdzenia warunków transakcji.
Przejdź do płatności dopiero po podpisaniu umowy sprzedaży. Zwyczajem jest dokonanie niewielkiej zaliczki w celu zarezerwowania pojazdu, ale należy to zrobić ostrożnie.
Potwierdź autentyczność sprzedawcy, zbierając szczegółowe informacje i sprawdzając opinie lub oceny od wcześniejszych kupujących. Szukaj ikon dealerów na Truck1, aby zidentyfikować zweryfikowanych sprzedawców i zapewnić sobie bezpieczniejsze doświadczenie zakupowe.
Porównaj ceny podobnych pojazdów za pomocą narzędzia porównawczego, aby zidentyfikować jakiekolwiek nietypowe oferty. Bądź ostrożny wobec cen znacznie odbiegających od rynkowej normy, ponieważ mogą one wskazywać na potencjalne problemy lub oszustwa.
Zapytaj sprzedawcę o szczegóły dotyczące historii pojazdu i warunków użytkowania. Prawdziwy sprzedawca będzie transparentny i chętny do dzielenia się tymi informacjami, pomagając ci ocenić, czy pojazd spełnia twoje potrzeby.
Umów się na oględziny i test pojazdu, szukając oznak zużycia lub uszkodzeń. Rozważ przeprowadzenie kontroli przedzakupowej przez profesjonalnego mechanika, aby wykryć ukryte problemy i zapewnić bezpieczeństwo oraz niezawodność pojazdu.
Przed dokonaniem jakiejkolwiek transakcji upewnij się, że jest przygotowana szczegółowa umowa sprzedaży, określająca wszystkie warunki. Używaj bezpiecznych metod płatności i weryfikuj szczegóły transakcji, aby chronić się przed oszustwem.
Leasing
Dostępne na życzenie
Ta oferta ma charakter wyłącznie informacyjny. Proszę potwierdzić szczegóły bezpośrednio u sprzedawcy.
Po zidentyfikowaniu interesującego pojazdu na Truck1.eu, masz możliwość skontaktowania się ze sprzedawcą za pomocą formularza kontaktowego lub dzwoniąc bezpośrednio do dealera pod podanym numerem telefonu. Wybierz metodę, która najlepiej odpowiada Twoim preferencjom.
Skontaktuj się ze sprzedawcą, aby poprosić o dodatkowe informacje dotyczące dostępności pojazdu, stanu technicznego i faktycznej ceny, ponieważ reklamy mogą nie zawsze zawierać pełne szczegóły. Dodatkowo poproś o najnowsze zapisy serwisowe lub raporty z inspekcji, aby uzyskać lepszy obraz aktualnego stanu pojazdu.
Wykorzystaj funkcję porównawczą Truck1 do oceny podobnych pojazdów. Pomoże Ci to ocenić, czy proponowana cena jest konkurencyjna i zgodna z trendami rynkowymi. Poszukaj wzorców w cenach i funkcjach, aby podjąć świadomą decyzję.
Podczas zakupu pojazdu online ważne jest, aby zweryfikować reputację sprzedawcy, szukając pozytywnych opinii i historii udanych transakcji. Ikony "Status sprzedawcy" na Truck1 dostarczają cennych informacji opartych na doświadczeniach z dealerem, pomagając ocenić wiarygodność sprzedawcy.
Jeśli to możliwe, priorytetem powinno być odwiedzenie sprzedawcy i osobiste zbadanie pojazdu. Jeśli to możliwe, zorganizuj inspekcję przedzakupową przez osobę trzecią. Może to ujawnić potencjalne problemy, które mogą nie być widoczne na zdjęciach lub wspomniane w ogłoszeniu.
Zadbaj o podpisanie szczegółowej umowy sprzedaży w celu ochrony swoich praw i potwierdzenia warunków transakcji.
Przejdź do płatności dopiero po podpisaniu umowy sprzedaży. Zwyczajem jest dokonanie niewielkiej zaliczki w celu zarezerwowania pojazdu, ale należy to zrobić ostrożnie.
Potwierdź autentyczność sprzedawcy, zbierając szczegółowe informacje i sprawdzając opinie lub oceny od wcześniejszych kupujących. Szukaj ikon dealerów na Truck1, aby zidentyfikować zweryfikowanych sprzedawców i zapewnić sobie bezpieczniejsze doświadczenie zakupowe.
Porównaj ceny podobnych pojazdów za pomocą narzędzia porównawczego, aby zidentyfikować jakiekolwiek nietypowe oferty. Bądź ostrożny wobec cen znacznie odbiegających od rynkowej normy, ponieważ mogą one wskazywać na potencjalne problemy lub oszustwa.
Zapytaj sprzedawcę o szczegóły dotyczące historii pojazdu i warunków użytkowania. Prawdziwy sprzedawca będzie transparentny i chętny do dzielenia się tymi informacjami, pomagając ci ocenić, czy pojazd spełnia twoje potrzeby.
Umów się na oględziny i test pojazdu, szukając oznak zużycia lub uszkodzeń. Rozważ przeprowadzenie kontroli przedzakupowej przez profesjonalnego mechanika, aby wykryć ukryte problemy i zapewnić bezpieczeństwo oraz niezawodność pojazdu.
Przed dokonaniem jakiejkolwiek transakcji upewnij się, że jest przygotowana szczegółowa umowa sprzedaży, określająca wszystkie warunki. Używaj bezpiecznych metod płatności i weryfikuj szczegóły transakcji, aby chronić się przed oszustwem.




















